House of Fourni
Dates
1st c. BCE
Garden Description
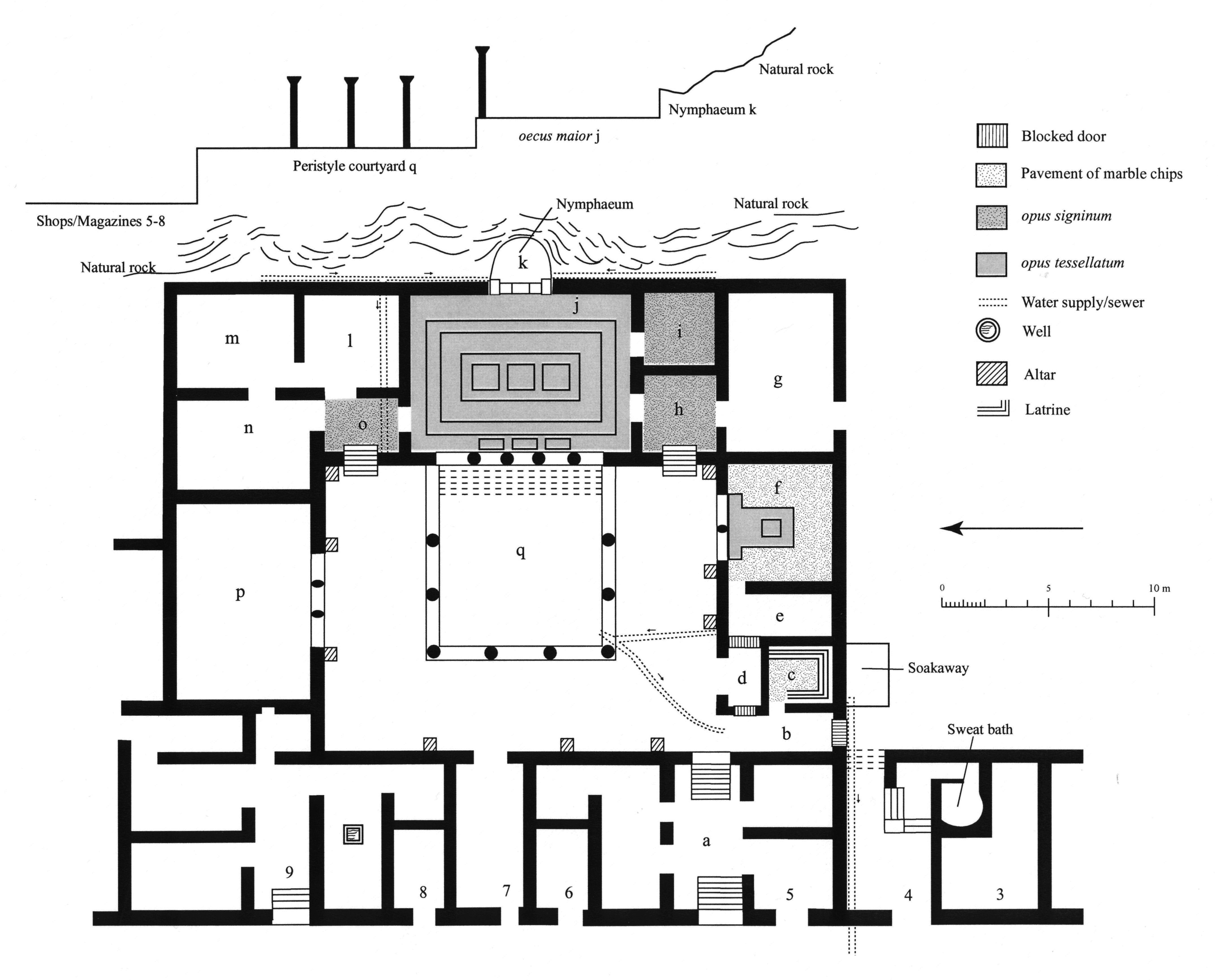
In the Late Hellenistic houses of Delos the impluvia of peristyle courtyards were usually paved, and rainwater falling into these courtyards was emptied as wastewater by sewers into nearby streets. However, in two large houses (Quarter of the Theater, Insula II, Houses E and F) and two clubhouses of associations (House of Fourni; Quarter of the Stadium, Insula I, building B, the so-called perfumery) the impluvia of the peristyle courtyards were not paved, with the exception of some scattered stone settings. Whereas one of them might have been left unfinished in a phase of remodeling (Quarter of the Theater, insula II, House F), the others were certainly all used, comprising of different phases of enlargement and embellishment. Thus, the lack of pavement cannot be due to the unfinished state of the buildings, but must have been deliberate. The sizes of these impluvia range from 30.20 square meters to 75.80 square meters. In all cases no cistern was established under the impluvium, as is usual in Delian buildings with peristyles. Furthermore, all four peristyle courtyards are provided with a sewer for the drainage of rain and waste water; the earthen floor of the impluvium could probably not absorb the occasional large quantities of rain water pouring down in heavy storms, so that at least some of the rain water had to be drained away. So far, planting was only proposed for the courtyard of the so-called perfumery, but no specialized examinations or excavations were performed in any of the four courtyards. In addition to the above-mentioned characteristics, some other features might speak in favor of luxurious garden-peristyles for these Delian buildings. In Delian private buildings, peristyle gardens were probably introduced rather late, during the heyday of the free port in the three or four decades before 88 B.C. Within the local context, the Agora of the Italians could have served as the most immediate model for this new fashion. The design of these gardens would have been simple. They would have consisted mostly of small trees, shrubs, and plants, which did not need much water. All of them had to be irrigated by hand, like the garden of the Agora of the Italians and many of the kitchen and commercial gardens, as Late Hellenistic Delos was not provided with a water pipe system.
The core building of the House of Fourni is arranged along a main axis with rooms on at least three different levels (Fig. 1). The main rooms were not oriented towards the south, as is usual in Delos, but towards the west, thus providing a view of the nearby bay of Fourni and the sea. A kind of nymphaeum (k), carved out of the natural rock and placed exactly on the main axis of the building, was added subsequently to the eastern façade of the building. A broad staircase led from the impluvium of the courtyard (q) to a large raised room in the east (j), a remarkably open oecus maior with doors on three sides and an opening to the nymphaeum on the fourth side. Therefore, the impluvium of 75.80 square meters will have been frequently used and would certainly have been paved, had it not been conceived for a special purpose like planting. Today, the courtyard is (again?) covered with small shrubs. The overall design and some other features like opus signinum pavements (rooms i, h and o) and 'liturgical' paintings for the cult of the lares compitales, a cult usually performed by slaves and liberti of Italians or Romans, point to a Roman or Italian association, which might have introduced some new fashionable traits into Delian private architecture.
Plans

Bibliography
- P. Bruneau, Recherches sur les cultes de Délos à l'époque hellénistique et à l'époque impériale. BEFAR fasc. 217, 1970. (worldcat).
- P. Bruneau, Les mosaïques. Exploration archéologique de Délos 29. Paris 1972. (worldcat).
- C. Le Roy, "Le tracé et le plan d'une villa hellénistique. La maison de Fourni à Délos," in Le dessin d'architecture dans les sociétés antiques. Actes du Colloque de Strasbourg, 26-28 janvier 1984. Travaux du Centre de Recherche sur le Proche Orient et la Grèce Antiques 8, 1985: 167-173, pl. 1. (worldcat).
- P. Bruneau and J. Ducat, Guide de Délos. École française d Athènes. 4th edition, Paris 2005, Nos. 79, 117, 124. (worldcat).
- M. Trümper, Wohnen in Delos. Eine baugeschichtliche Untersuchung zum Wandel der Wohnkultur in hellenistischer Zeit. Internationale Archäologie 46, Rahden/Westfalen 1998: 262-265, 317-318, figs. 59. 62, plan I. (worldcat).
- M. Trümper, "Negotiating Religious and Ethnic Identity: the Case of Clubhouses in Late Hellenistic Delos," in ed. I. Nielsen, Zwischen Kult und Gesellschaft. Kosmopolitische Zentren des antiken Mittelmeerraums als Aktionsraum von Kultvereinen und Religionsgemeinschaften. Akten eines Symposiums des Archäologischen Instituts der Universität Hamburg (12.-14. Oktober 2005). Hephaistos 24, 2006, pp. 113-150. (worldcat).
Keywords
- impluviaAAT:300129867
- nymphaea (garden structures)AAT:300006809
- oeciAAT:300080791
- peristyles (Roman courtyards)AAT:300080971