House of the Black and White Triclinium (Maison du triclinium en noir et blanc)
Location

Location Description
Pupput is located about three km to the northwest of Hammamet. Two inscriptions inform the designated title of the city, which became a colony (Colonia Aurelia Commoda Pia Felix Augusta Pupput) under the reign of Commodus. The city benefited from a strategic location at the crossroads linking Clupea to Thhuburbo and Carthage to Hadrumetum. Large residential quarters with houses and baths were excavated as well as a large necropolis.
Garden
House of the Black and White Triclinium (Maison du triclinium en noir et blanc)
Keywords
Garden Description
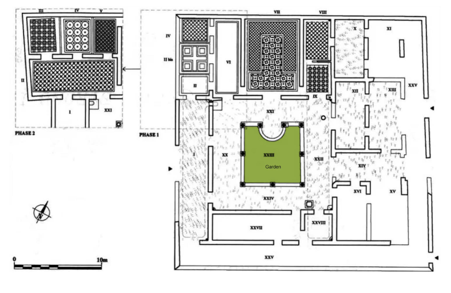
The house is laid out around a square shaped peristyle garden. Between the columns runs a low wall (0.30m) that separates the porticoes from the garden. There was a semicircular basin in the N facing the triclinium (Plan view, Fig.1). The house is dated from the II-III c.
Plans

Dates
2nd-4th century CE
Bibliography
- Ben Abed Ben Khader, A., "Présentation de la maison du triclinium en noir et blanc à Pupput", in Bulletin des Travaux de l'Institut National d'Archéologie et de I 'Art (Tunis) 3, 1989 (1990), pp. 32-33.
- Ben Abed Ben Khader, A., Griesheimer, M., "Fouilles de la nécropole romaine de Pupput (Tunisie)", in Comptes rendus des séances de l'Académie des Inscriptions et Belles-Lettres, 145ᵉ année, N. 1, 2001. pp. 553-592, fig. 1, p.557. (worldcat)
- Ben Abed Ben Khader, A., "Les maisons de Pupput (Tunisie)", in Comptes rendus des séances de l'Académie des Inscriptions et Belles-Lettres, 150ᵉ année, N. 1, 2006. pp. 510-518, fig. 2, p. 513. (worldcat)
- Bullo, S., Ghedini, F., Amplissimae atque ornatissimae domus: l'edilizia residenziale nelle città della Tunisia romana, Rome: Edizioni Quasar, 2003, pp.188-189. (worldcat)