House of the Palms (Maison des Palmes)
Location

Location Description
The city occupies the slopes of a hill in a fertile grain producing area about 50 kilometers to the south of Tunis. Originally a settlement of mercenary soldiers after the fall of Carthage, it was raised to a municipium by Hadrian (117-138), and to a colony during the rein of Commodus (177-192). The chief public buildings and the most beautiful homes date from this period. After the crisis of the Empire during the third century, Thuburbo saw a rebirth in the fourth century; but as imperial authority declined the city became a mere village.
Garden
House of the Palms (Maison des Palmes)
Keywords
- domusAAT:300005506
- peristyle housesAAT:300005452
- semicircular basin
- mosaics (visual works)AAT:300015342
Garden Description
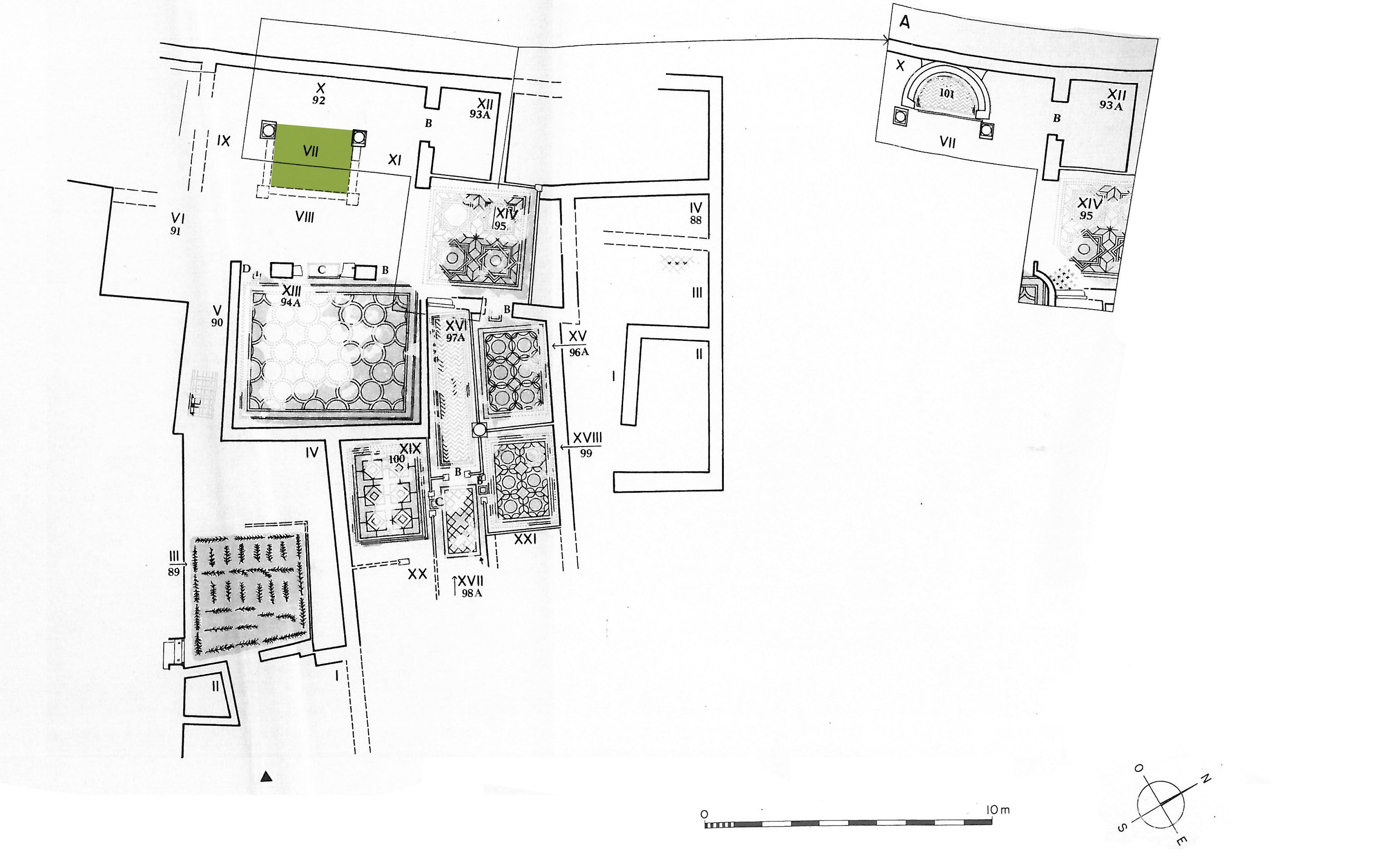
The house of the Palms was located to the NW of the forum. A semicircular basin was installed at a later date over the mosaic in the NW portico at the edge of what was perhaps a small garden (Plan View, Fig. 1).
Plans

Dates
Early 3rd century CE
Bibliography
- Alexander, M.A., Ben Abed, A. and Besrour, S., Corpus des mosaïques de Tunisie, Thuburbo Majus, Les mosaïques de la région du Forum, V. II, fasc.1, INA, Tunis, 1980, pp. 115-27, plan 25-26. (worldcat)
- Ben Abed-Ben Khader, A., Corpus des Mosaïques de Tunisie, Thuburbo Majus, Les mosaïques de la région Ouest, V. II, fasc.3, INA, Tunis, 1987.(worldcat)
- Bullo, S., Ghedini, F., Amplissimae atque ornatissimae domus: l'edilizia residenziale nelle città della Tunisia romana, Rome, Edizioni Quasar, 2003, pp.237-239. (worldcat)