House of the Protomes (Maison des Protomés)
Location

Location Description
The city occupies the slopes of a hill in a fertile grain producing area about 50 kilometers to the south of Tunis. Originally a settlement of mercenary soldiers after the fall of Carthage, it was raised to a municipium by Hadrian (117-138), and to a colony during the rein of Commodus (177-192). The chief public buildings and the most beautiful homes date from this period. After the crisis of the Empire during the third century, Thuburbo saw a rebirth in the fourth century; but as imperial authority declined the city became a mere village.
Garden
House of the Protomes (Maison des Protomés)
Keywords
- domusAAT:300005506
- peristyle housesAAT:300005452
- mosaics (visual works)AAT:300015342
- semicircular basin
- pools (bodies of water)AAT:300008692
- fishpondsAAT:300008689
- oeciAAT:300080791
Garden Description
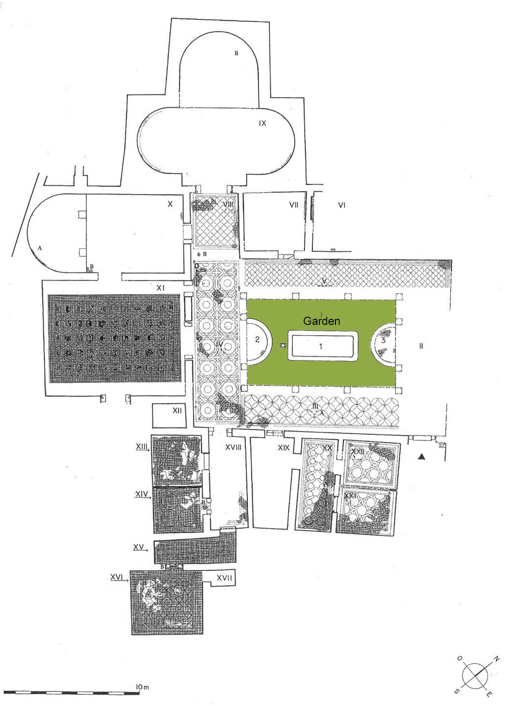
This very large house on the western edge of the site had two sectors, the Trifolium area and the Protomes area (Plan view, Fig. 1).
The Trifolium sector, was laid out around a peristyle garden (I-V) enclosed on four sides by a portico of 12 columns. The garden, 35 cm lower than the level of the portico, had a deep rectangular pool (1) and a semicircular basin (2, 3) placed at each end of the garden on the axis of the oecus (XI). Eight ceramic vases (8 cm in dia., 30 cm deep) embedded in the sides of the pool provided places for the fish to lay eggs and served as shady retreats for the fish. The pool and the basins were paved with mosaics. These have been mostly destroyed, but pieces of the bottom paving of the basin (3) show birds and a hare among cut branches of flowers.
Plans

Dates
4th century CE
Bibliography
- Ben Abed-Ben Khader, A., Corpus des Mosaïques de Tunisie, Thuburbo Majus, Les mosaïques de la région Ouest, V. II, fasc.3, INA, Tunis, 1987, pp. 27-60, plan 4-5. (worldcat)
- Bullo, S., Ghedini, F., Amplissimae atque ornatissimae domus: l'edilizia residenziale nelle città della Tunisia romana, Rome: Edizioni Quasar, 2003, pp.245-248. (worldcat)