House of the Lucius Verus
Location
Location Description
Thysdrus is located on the western border of the Sahel at 60 km S of Hadrumetum on the road leading to Sfax. The development, from the end of the 2d c., of its olive plantations and its trade in oil made the fortune of the city.
The name appeared for the first time in the period of Caesar's African campaign when the city, at the time a small town, took side with the Pompeian and Juba against Ceasar. Towards the end of the 2d c. it became a municipium, competing with Hadrumetum for the second place in the province. The decline of Thysdrus began when, involved in a political crisis, the city choose the side of Gordian proconsul of Africa against the Emperor Maximianus. The joint effects of the political disgrace and the economic crisis, which resulted from it, brought an end to its development. By the end of the IVth century it was scarcely mentioned by the Catholic and Donatist bishops.
Among the most remarkable monuments of the ancient city are the best preserved large amphitheater in Africa, the small amphitheater located some 7.20 m to the S of the large one, the circus better visible on an aerial photography, the baths covering a surface of 2400 sq., and the residential district bounded on the S by a necropolis and to the E by a fine street.
Garden
House of the Lucius Verus
Keywords
Garden Description
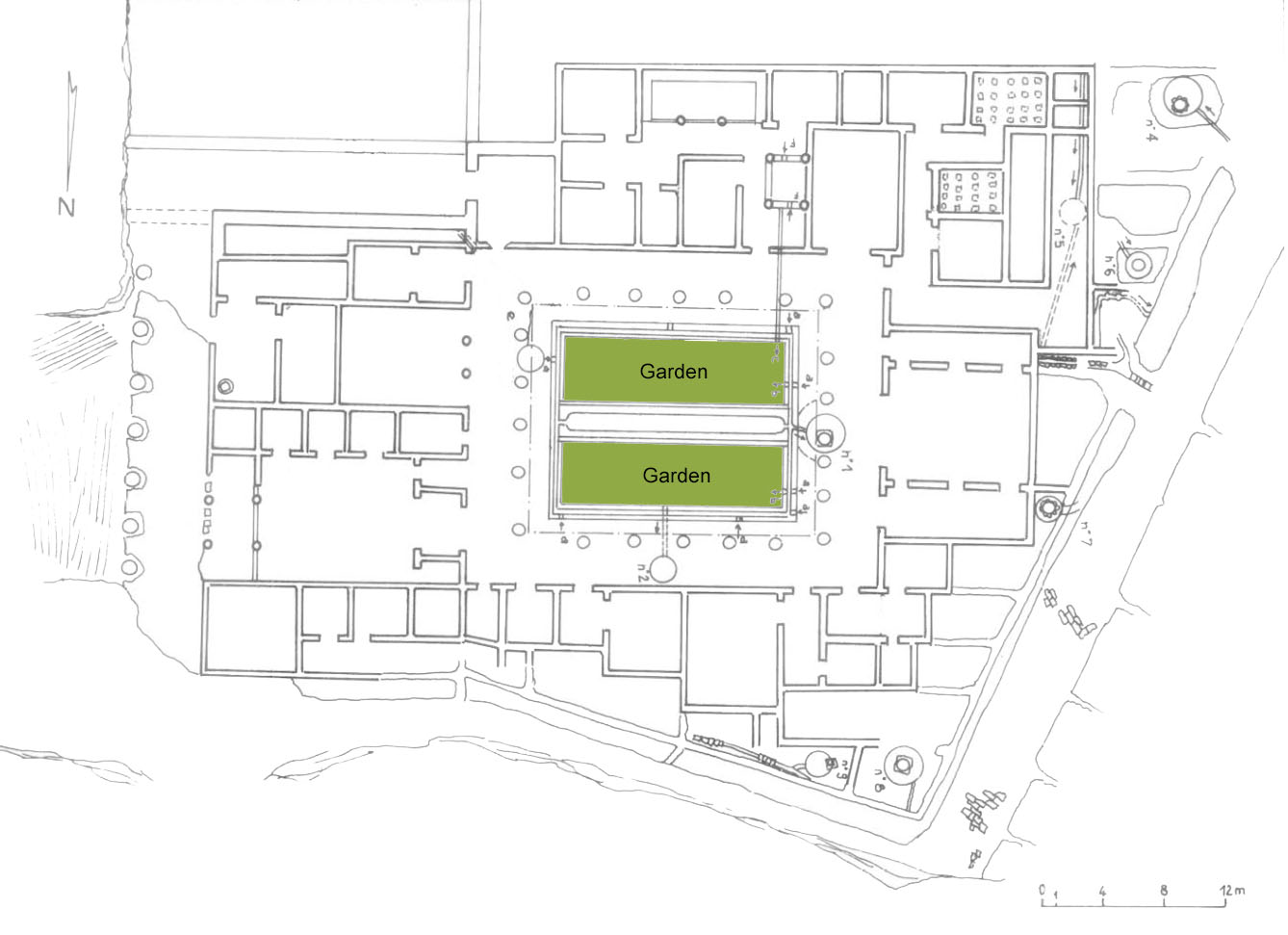
The house was laid out around a large persityle garden of twenty-two columns (20 x15.5 m) that had a euripus and a semicircular basin facing a large reception room (Plan view, Fig.1)
Plans

Dates
3rd century CE
Bibliography
- Bullo, S., Ghedini, F., Amplissimae atque ornatissimae domus: l'edilizia residenziale nelle città della Tunisia romana, Rome: Edizioni Quasar, 2003, pp.285-287. (worldcat)
- Slim, H., "Thysdrus, une des plus grandes villes romaines d'Afrique", in Les Dossiers de l'Archéologie, 69, 1983, pp. 52-61.
- Slim, H., "La maison du portrait de Lucius Verus à El Jem," BSAF, 1990, pp.87-88. (worldcat)
- Slim, H., "Le modèle urbain romain et le problème de l'eau dans les confins Sahel et de la Basse Steppe", in Afrique dans l'Occident romain (1er Siècle av. J.-C.- IV siècls ap. J.-C.) Actes du Colloque, Rome, décembre 1987, Rome, 1990, pp. 190-192. (worldcat)
- Slim, H., El Jem, Ancient Thrysdrus, Tunis, 1996, pp. 75-76. (worldcat)
- Commission d'Afrique du Nord 2/2/90 BCTH. (worldcat)