House of the Peacock (Maison du Paon)
Location
Location Description
Thysdrus is located on the western border of the Sahel at 60 km S of Hadrumetum on the road leading to Sfax. The development, from the end of the 2d c., of its olive plantations and its trade in oil made the fortune of the city.
The name appeared for the first time in the period of Caesar's African campaign when the city, at the time a small town, took side with the Pompeian and Juba against Ceasar. Towards the end of the 2d c. it became a municipium, competing with Hadrumetum for the second place in the province. The decline of Thysdrus began when, involved in a political crisis, the city choose the side of Gordian proconsul of Africa against the Emperor Maximianus. The joint effects of the political disgrace and the economic crisis, which resulted from it, brought an end to its development. By the end of the IVth century it was scarcely mentioned by the Catholic and Donatist bishops.
Among the most remarkable monuments of the ancient city are the best preserved large amphitheater in Africa, the small amphitheater located some 7.20 m to the S of the large one, the circus better visible on an aerial photography, the baths covering a surface of 2400 sq., and the residential district bounded on the S by a necropolis and to the E by a fine street.
Garden
House of the Peacock (Maison du Paon)
Keywords
Garden Description
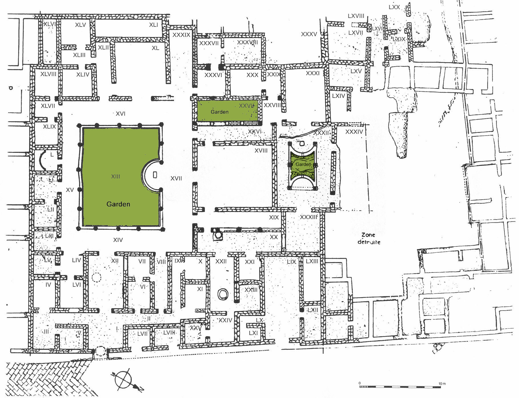
This large house (1800 m2) adjacent to the domus of Sollertiana on the N had a large peristyle garden (XIII, 10.50 x 13.20 m) enclosed on four sides by a portico (XIV-XVII) of 18 columns that were connected by a low wall (Plan view, Fig.1). A semicircular basin facing the large oecus on the N, extended into the garden 30 cm lower than the level of the portico. To the N a small courtyard garden (XXXII, 2.70 x 3.70 m) 40cm lower than the level of the portico had 2 two semicircular pools that occupied most of the space, each facing a reception room (XXXI, XXXIII).
The light well (XXVII, 8.45 x 2.75 m) to the W of the oecus was also planted.
Plans

Dates
Early 3rd century CE
Bibliography
- Bullo, S., Ghedini, F., Amplissimae atque ornatissimae domus: l'edilizia residenziale nelle città della Tunisia romana, Rome: Edizioni Quasar, 2003, pp.266-267.pp.313-316. (worldcat)
- Dulière, C., Corpus des Mosaïques de Tunisie, Thysdrus, El Jem, Quartier Sud-Ouest, INA, Tunis, 1996, pp. 31-66, plans 3-4.(worldcat)