House of the Figured Basin (Maison du bassin figuré)
Location
Location Description
Her geographic situation made of Utica one of the oldest and well-known Phoenician settlements. In 146 B.C, Utica became the capital of the newly created province of Africa and the residence of the governor. With the triumph of Caesar and the resurgence of Carthage, Utica's supremacy would gradually decline under the empire. In 36 B.C. it became a municipium and a colony under Hadrian.
The city was laid out on a grid plan. Numerous buildings have been uncovered, among them the forum, several temples and baths, an amphitheater, a circus, and opulent houses. Many of these buildings of the Republican period were, during the imperial era, replaced by others larger and more luxurious. This explains the existence of two theaters for example, the one fitted into the side of the hill, the other built in open country. Enormous cisterns were constructed, fed by an aqueduct. Still extant on the summit of the acropolis overlooking the town, is a quadrangular edifice habitually referred to as "the citadel," which could perhaps be simply a water tower.
Garden
House of the Figured Basin (Maison du bassin figuré)
Keywords
Garden Description
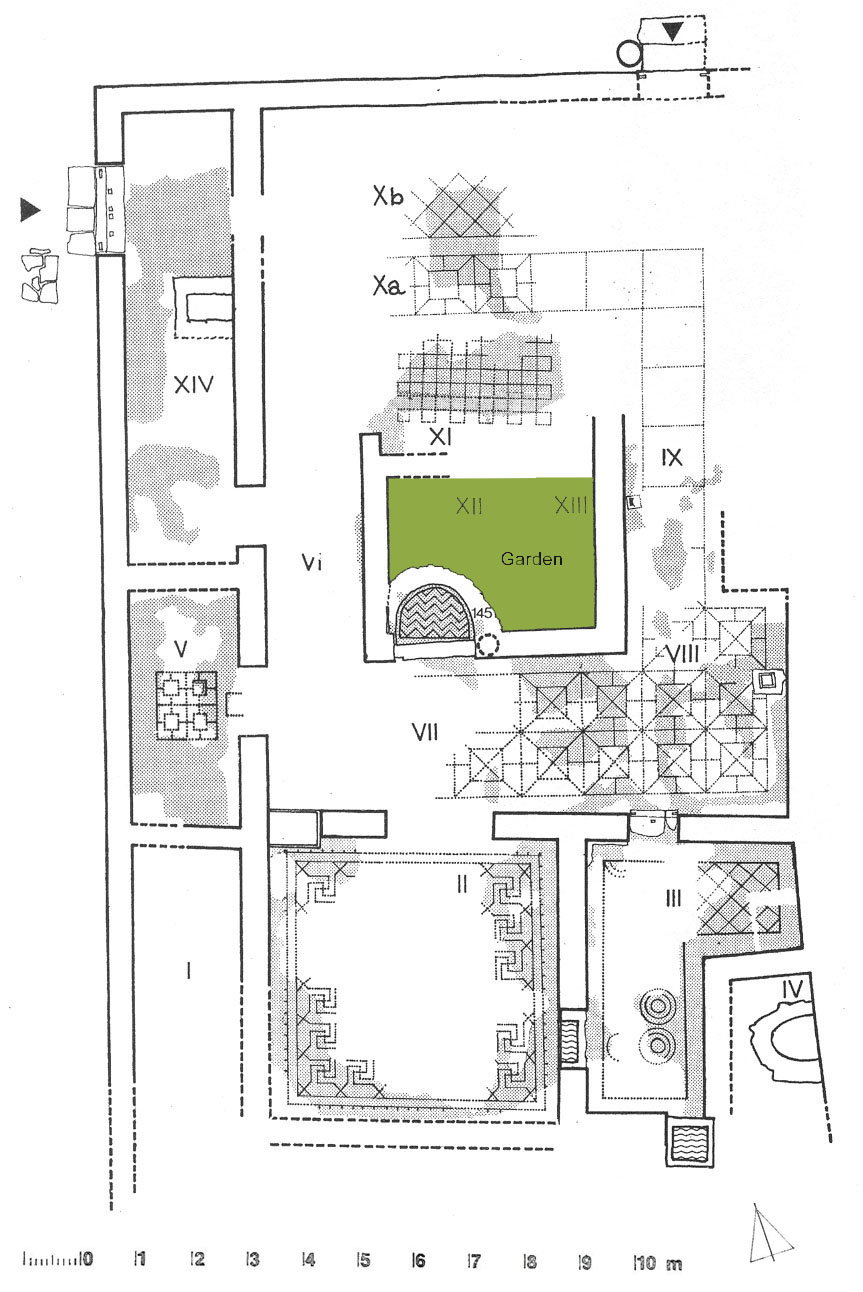
The house was located in the insula III. The rectangular courtyard, in the SW corner on the axis of the great hall (XI), paved during the last period may have been a garden earlier (Plan view, Fig.1). It had a semicircular basin with a geometric design in the bottom. The wall and the brim were figured.
Plans

Dates
2nd-4th century CE
Bibliography
- Alexander, M. A., Ennaifer, M., Corpus des Mosaïques de Tunisie, Utique, insulae, I-II-III, INA, Tunis, 1973, pp. 121, 126-128, plan 22. (worldcat)
- Bullo, S. and F. Ghedini,. Amplissimae atque ornatissimae domus: l'edilizia residenziale nelle città della Tunisia romana, Rome: Edizioni Quasar, 2003,pp.344-345. (worldcat)