House of the Treasure (Maison au trésor)
Location
Location Description
Her geographic situation made of Utica one of the oldest and well-known Phoenician settlements. In 146 B.C, Utica became the capital of the newly created province of Africa and the residence of the governor. With the triumph of Caesar and the resurgence of Carthage, Utica's supremacy would gradually decline under the empire. In 36 B.C. it became a municipium and a colony under Hadrian.
The city was laid out on a grid plan. Numerous buildings have been uncovered, among them the forum, several temples and baths, an amphitheater, a circus, and opulent houses. Many of these buildings of the Republican period were, during the imperial era, replaced by others larger and more luxurious. This explains the existence of two theaters for example, the one fitted into the side of the hill, the other built in open country. Enormous cisterns were constructed, fed by an aqueduct. Still extant on the summit of the acropolis overlooking the town, is a quadrangular edifice habitually referred to as "the citadel," which could perhaps be simply a water tower.
Garden
House of the Treasure (Maison au trésor)
Keywords
Garden Description
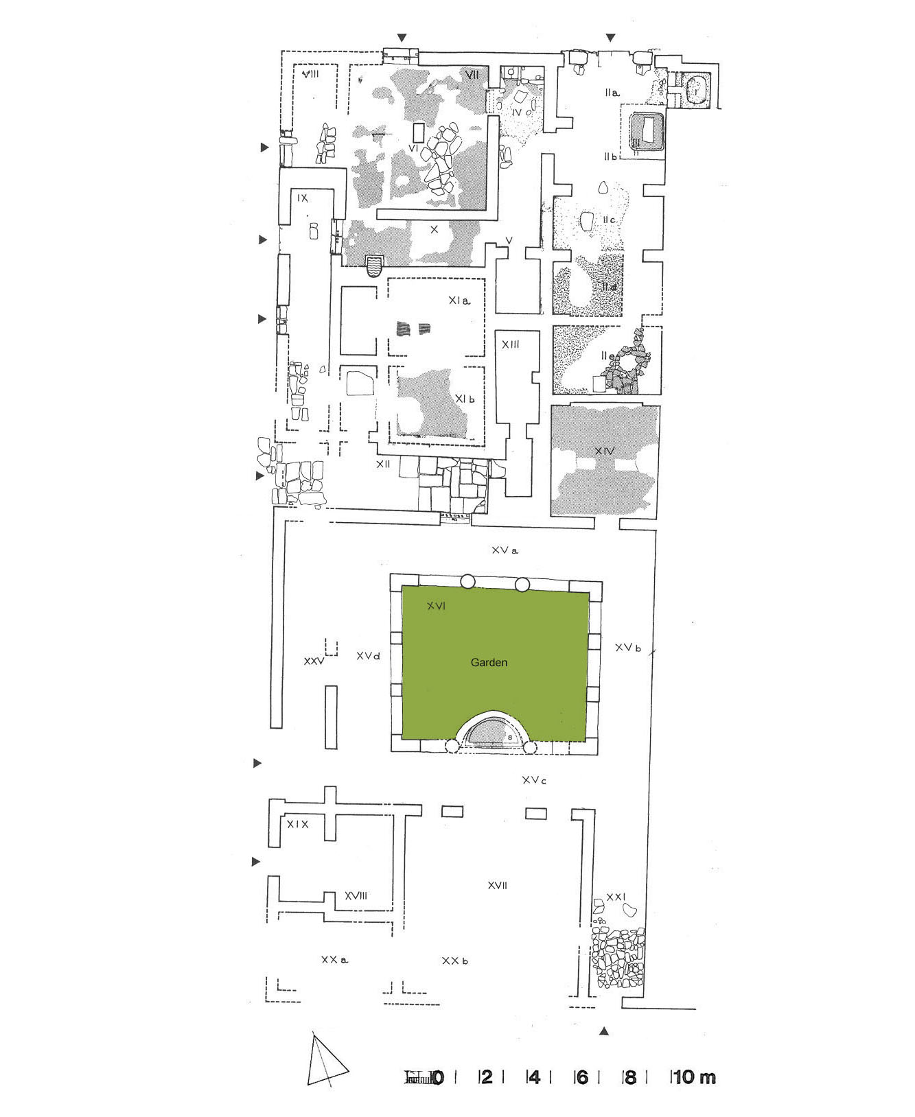
The House is located in the insula II (Lots 1,7). The peristyle garden had a semicircular basin extending from the two middle columns on the S side, facing the triclinium (XVII) during the first century AD (Plan view, Fig.1). When the house was substantially altered in the second century the enlargement of the curb on the adjoining well destroyed half of the basin. At the same time the oecus was subdivided into several rooms, the courtyard was paved.
Maps
Plans

Dates
1st-4th century CE
Bibliography
- Bullo, S. and F. Ghedini,. Amplissimae atque ornatissimae domus: l'edilizia residenziale nelle città della Tunisia romana, Rome: Edizioni Quasar, 2003, pp.348-349. (worldcat)
- Dulière, C., Ben Baaziz, S., et al., Corpus des Mosaïques de Tunisie, Utique, Les Mosaïque in situ en dehors des insulae I-II-III, INA, Tunis, 1974, pp.11-18, plans 3,4.(worldcat)