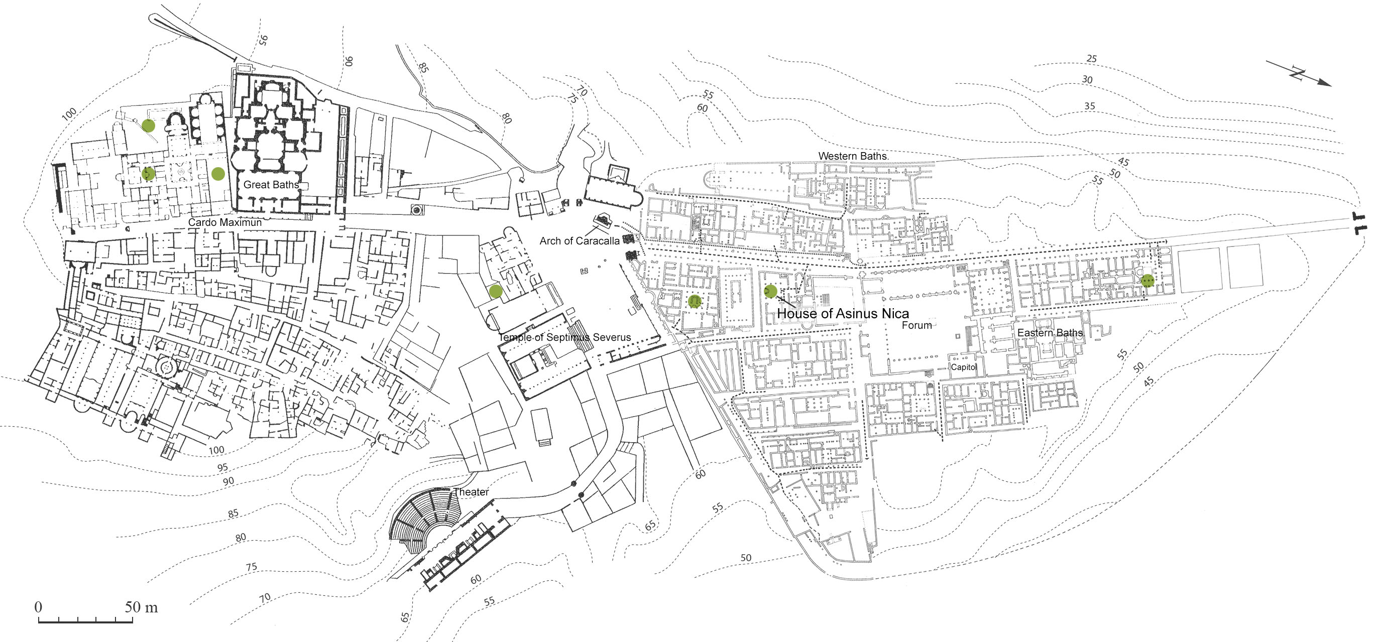
House of Asinus Nica, Central District (Maison de l'Ane, quartier central)
Province
Province Description
The frontier between Numidia and Mauretania fluctuated during early the African kingdoms. It was fixed at the river of Ampsaga during Caesar's reign when he rewarded his ally King Bocchus, giving him part of the Numidian kingdom. By 31 BCE, Numidia (also known as Africa Nova) was under direct Roman control, becoming attached to the province of Africa Proconsularis. Toward 194 CE, Septimus Severus detached most of the Numidia territory from the province of Africa Proconsularis, forming a special province governed from Cirta by a procurator, subordinate to the imperial legate. With the Diocletian reforms, the whole of Roman Africa (with exception of Mauretania Tingitana) constituted a single diocese subdivided into six provinces, including Numidia Cirtensis with Cirta as capital.
Location

Location Description
The city of Cuicul, modern Djemila in Algeria, was a Roman colony founded by Trajan at the beginning of the second century. It was located near the western frontier of Numidia, at a crossroads near the High Plain of Setif and quite south of the actual "Little Kabylie" region. The original city center was constructed on a spur set between two merging wadi, the Gergour and the Betame, at an altitude of about eight hundred meters above sea level, surrounded by mountains more than a thousand meters above sea level. There are snow falls and freezing cold in winter and plenty of water. For the most part, the climate exc1udes plants which cannot stand the frost; however, we can infer the presence of olive plantations due to the number of olive presses found throughout the town.
Garden
House of Asinus Nica, Central District (Maison de l'Ane, quartier central)
Keywords
- domusAAT:300005506
- peristyle housesAAT:300005452
- courtyards (uncovered spaces)AAT:300004095
- exedrae (site elements)AAT:300081589
- mosaics (visual works)AAT:300015342
- stairs (series of steps)AAT:300003228
- triclinia (rooms)AAT:300004359
- balneaAAT:300120377
- basins (vessels)AAT:300045614
Garden Description
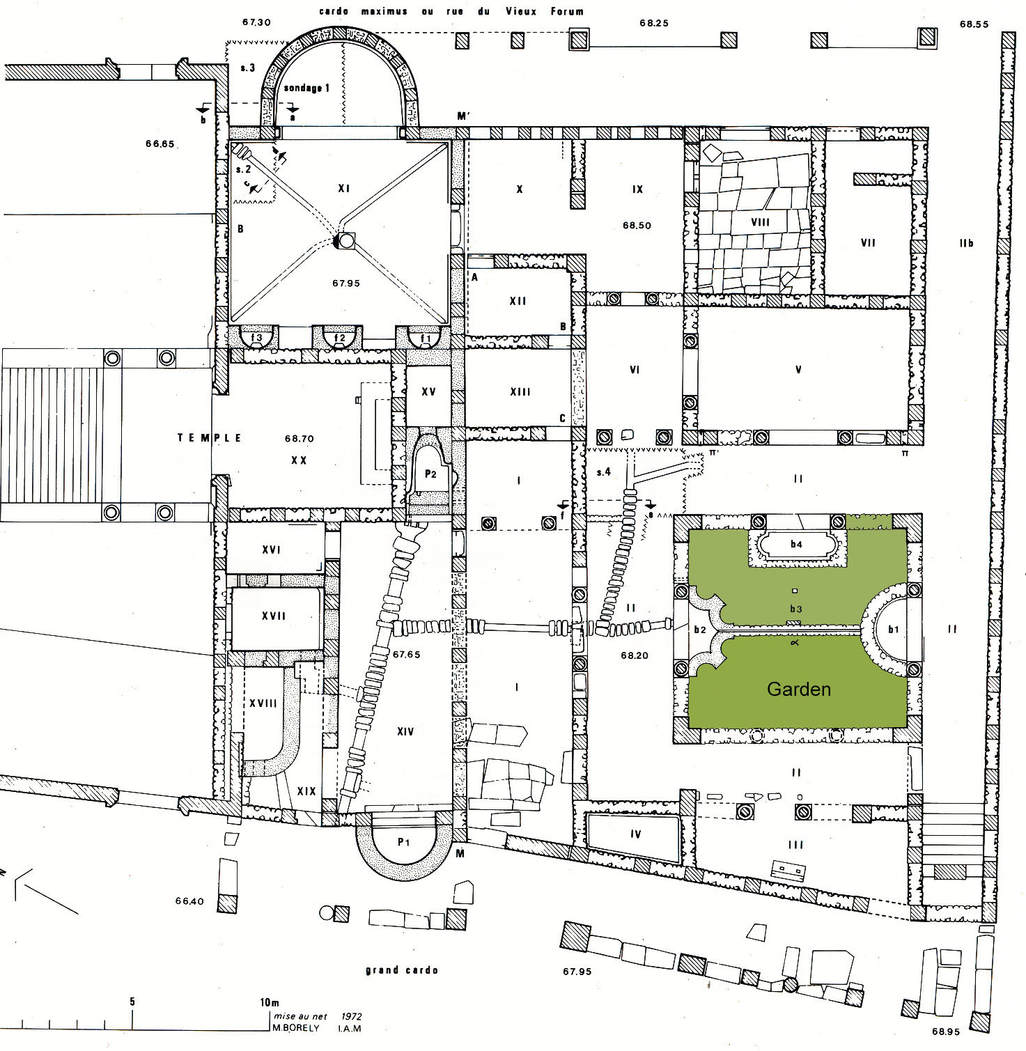
Like several peristyle houses of the ancient part of Cuicul, the house of Asinus Nica, about 870 square meters in size, was inhabited and transformed from the second to the fifth century. The fifth century additions are the large reception room XI with a marine Venus mosaic and the private baths with the Asinus Nica mosaics. The more ancient part of the house, south of wall M-M' is rather small and more irregular in shape.
The open area of this peristyle garden, about 9 by 8.5 meters in size, is enclosed by 1 meter-high walls and divided into compartments. Some these were pools, as we can still see hydraulic mortar inside. From the semi-circular pool, a rilled wall brought water to a lower pool, shaped as half a concave octagon. The eastern compartment was a pool that may have been decorated with a water spout, of which only bases remain. It contained a smaller pool, rectangular with two niches. In the western compartment, no mortar was found; it was certainly planted. Four quoining pillars, standing directly on the rock, and eight columns, sitting on low walls, supported the four porticoes that were paved with geometrical mosaics.
The house lacked wide-open views from exedra and from the galleries towards the pools and the gardens. This irregularity can be explained by the presence of a first floor opening directly onto the Cardo Maximus, the existence of which is shown by a staircase with seven steps. A reception room was located on the first floor, so that the enclosed garden and the pools could be seen through windows or galleries from the upper floor. From this elevation, the luxurious decoration and lavish use of water would have been seen to full effect.
Plans

Images

Dates
2nd-5th century CE
Bibliography
- Blanchard-Lemée, M., Maisons à mosaïques du quartier central de Djemila (Cuicul), Paris, 1975, pp. 129-151. (worldcat)
- Février, P.-A., Blanchard-Lemée, M., L'édifice appelé "Maison de Bacchus" à Djemila, Études d'antiquités africaines, CNRS Editions, Paris, 2019, SSN 0768-2352. (worldcat)