House of Europa, Central District (Maison d'Europe, Quartier Central)
Province
Province Description
The frontier between Numidia and Mauretania fluctuated during early the African kingdoms. It was fixed at the river of Ampsaga during Caesar's reign when he rewarded his ally King Bocchus, giving him part of the Numidian kingdom. By 31 BCE, Numidia (also known as Africa Nova) was under direct Roman control, becoming attached to the province of Africa Proconsularis. Toward 194 CE, Septimus Severus detached most of the Numidia territory from the province of Africa Proconsularis, forming a special province governed from Cirta by a procurator, subordinate to the imperial legate. With the Diocletian reforms, the whole of Roman Africa (with exception of Mauretania Tingitana) constituted a single diocese subdivided into six provinces, including Numidia Cirtensis with Cirta as capital.
Location

Location Description
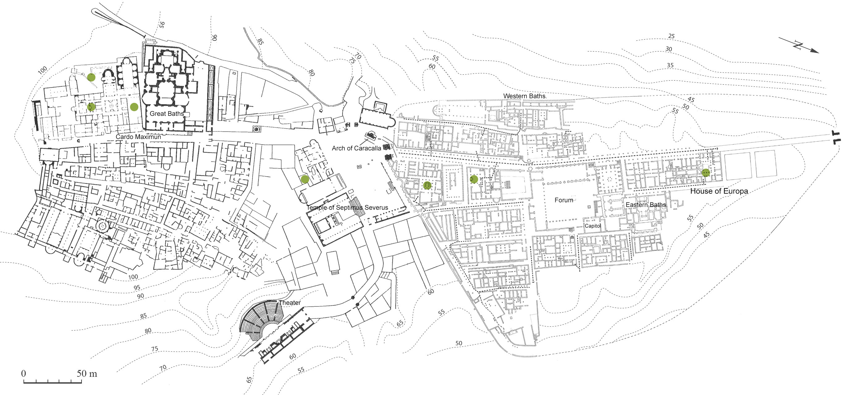
The city of Cuicul, modern Djemila in Algeria, was a Roman colony founded by Trajan at the beginning of the second century. It was located near the western frontier of Numidia, at a crossroads near the High Plain of Setif and quite south of the actual "Little Kabylie" region. The original city center was constructed on a spur set between two merging wadi, the Gergour and the Betame, at an altitude of about eight hundred meters above sea level, surrounded by mountains more than a thousand meters above sea level. There are snow falls and freezing cold in winter and plenty of water. For the most part, the climate exc1udes plants which cannot stand the frost; however, we can infer the presence of olive plantations due to the number of olive presses found throughout the town.
Garden
House of Europa, Central District (Maison d'Europe, Quartier Central)
Keywords
- balneaAAT:300120377
- domusAAT:300005506
- mosaics (visual works)AAT:300015342
- peristyle housesAAT:300005452
- triclinia (rooms)AAT:300004359
- basins (vessels)AAT:300045614
- planters (containers)AAT:300237566
- pools (bodies of water)AAT:300008692
Garden Description
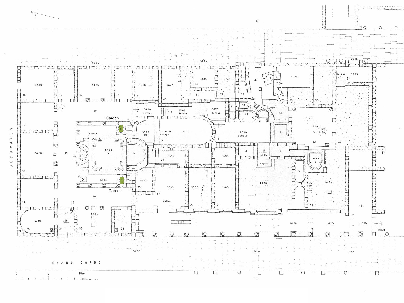
The block of buildings termed the House of Europa, about 1500 square meters in area, extends along the main Cardo, quite over the north gate of the town. It included large and small baths, a monumental entrance, shops and other areas for commercial use, and a peristyle house on the north side. It was excavated in 1914 and 1915.
Three exedras (Fig. 1, labels 13, 18 and 22) had a large view into the peristyle courtyard (Fig. 2). An open area, limited by the wall I-J and measuring about 10 by 8.4 meters, was enclosed by three porticoes, supported by six columns on the north, five columns and one pilaster on the west and east sides. Around the end of the second century, the area seems to have been paved with cement; rain water went out through a drainage structure at the northwest corner, towards the main drain in the street. At a later period when the house extended to the whole insula, possibly during the fourth or fifth century, three pools were added to the peristyle. In front of the large north exedra, there was a low semicircular pool with small niches inside. At an upper level, a large square pool with niches in the corners almost covered the open central area, about 6 by 5.6 meters in size. On the south side, projecting over the ancient dividing wall I-J, there was a large semi-circular pool, with a small axial recess. On each side, on the southern limit of the square pool, we see a small planter (Fig. 1, labels d and d'), originally at the same height as this pool, about 0.70 m. On each side of the small northern pool, similarly tall plinths probably bore a crater-shaped planting pot or a sculpture, bounded by a low wall to the middle pool.
Room 18 enjoyed a spectacular view toward the terraced fountains and plants. It was paved with mosaics from both the early and late Empire periods, remnants of which have been found. In the fifth century, room 13 was transformed into a triclinium opening towards the west and was paved with a mosaic of Europa.
Above a vaulted cellar (Fig. 1, label IX), probably dating to the second century, a terrace overlooked the peristyle courtyard towards the south. It might have been used as a hanging garden, possibly decorated with potted plants.
Plans

Images


Dates
2nd-5th century CE
Excavation Dates
1914-1915
Bibliography
- Allais, Y., "La maison d'Europe à Djemila", in Revue Africaine, 83, 1939, pp. 35-44. (worldcat)
- Blanchard-Lemée, M., Maisons à mosaïques du quartier central de Djemila (Cuicul), Paris, 1975, pp. 129-151, fig.49. (worldcat)
- Février, P.-A., Blanchard-Lemée, M., L'édifice appelé "Maison de Bacchus" à Djemila, Études d'antiquités africaines, CNRS Editions, Paris, 2019, SSN 0768-2352. (worldcat)