House of Hylas, Central District (Maison de Castorius, Quartier central)
Province
Province Description
The frontier between Numidia and Mauretania fluctuated during early the African kingdoms. It was fixed at the river of Ampsaga during Caesar's reign when he rewarded his ally King Bocchus, giving him part of the Numidian kingdom. By 31 BCE, Numidia (also known as Africa Nova) was under direct Roman control, becoming attached to the province of Africa Proconsularis. Toward 194 CE, Septimus Severus detached most of the Numidia territory from the province of Africa Proconsularis, forming a special province governed from Cirta by a procurator, subordinate to the imperial legate. With the Diocletian reforms, the whole of Roman Africa (with exception of Mauretania Tingitana) constituted a single diocese subdivided into six provinces, including Numidia Cirtensis with Cirta as capital.
Location

Location Description
The city of Cuicul, modern Djemila in Algeria, was a Roman colony founded by Trajan at the beginning of the second century. It was located near the western frontier of Numidia, at a crossroads near the High Plain of Setif and quite south of the actual "Little Kabylie" region. The original city center was constructed on a spur set between two merging wadi, the Gergour and the Betame, at an altitude of about eight hundred meters above sea level, surrounded by mountains more than a thousand meters above sea level. There are snow falls and freezing cold in winter and plenty of water. For the most part, the climate exc1udes plants which cannot stand the frost; however, we can infer the presence of olive plantations due to the number of olive presses found throughout the town.
Garden
House of Hylas, Central District (Maison de Castorius, Quartier central)
Keywords
- domusAAT:300005506
- mosaics (visual works)AAT:300015342
- peristyle housesAAT:300005452
- semicircular basin
Garden Description
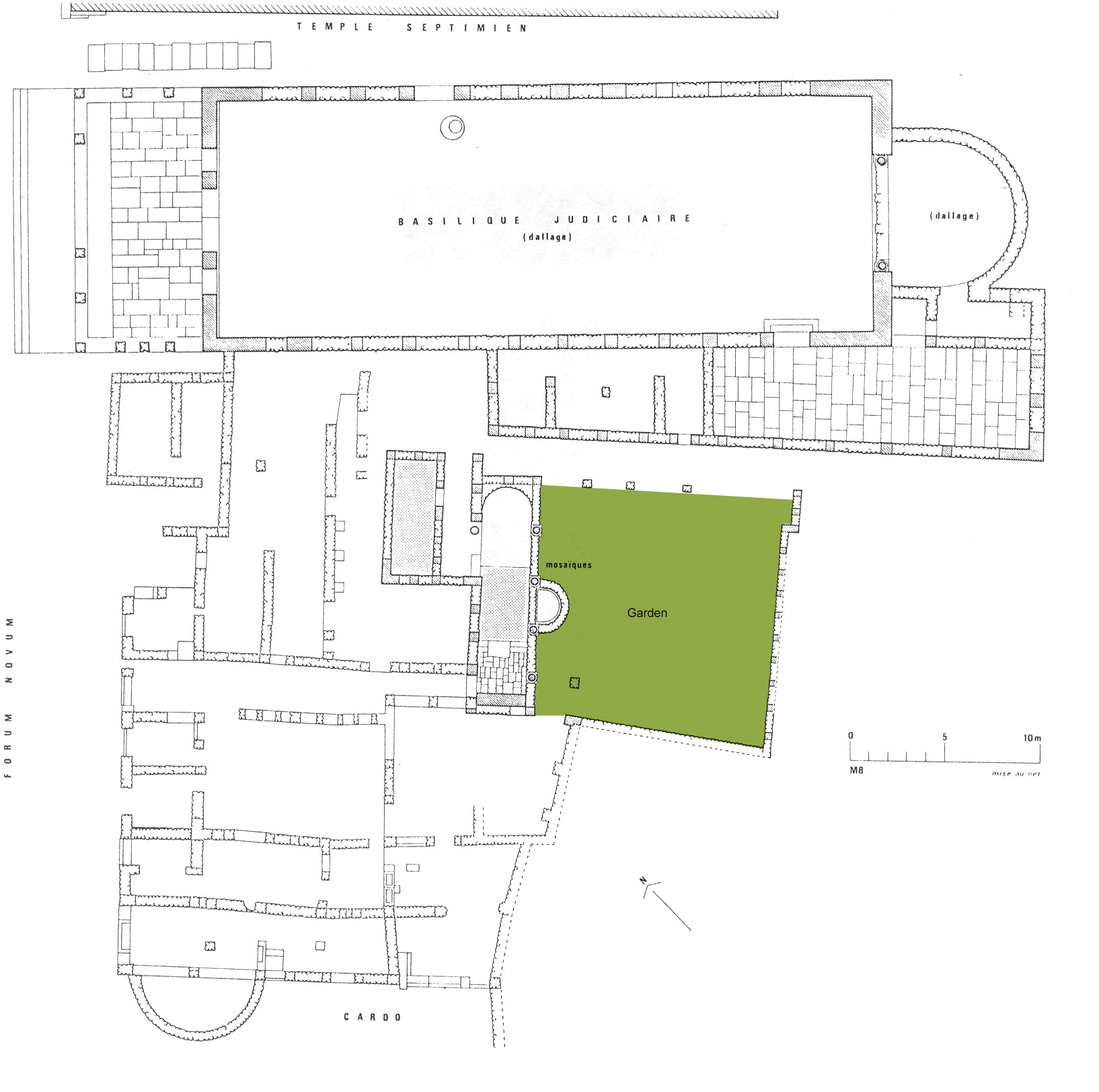
This small, irregular house, resting against the west wall of the judicial basilica, was found in a ruined state in 1938.
On the side of the corridor leading from the Severan Forum, there was a garden, about 11 by 12 meters in size. It was enclosed by a portico on the north and the east sides, with an entrance on the northwest corner. The north gallery, paved with stone slabs and a Hylas mosaic, was supported by four columns standing on a low wall. In the middle of the central intercolumnation, there was a semi-circular pool. The site is dated between the end of the fourth and the fifth centuries.
Plans

Images

Dates
4-5th century CE
Excavation Dates
1938
Bibliography
- Blanchard-Lemée, M., Maisons à mosaïques du quartier central de Djemila (Cuicul), Paris, 1975, pp. 129-151. (worldcat)
- Février, P.-A., Blanchard-Lemée, M., L'édifice appelé "Maison de Bacchus" à Djemila, Études d'antiquités africaines, CNRS Editions, Paris, 2019, SSN 0768-2352. (worldcat)
- Février, P.-A., "Note sur le développement urbain en Afrique du Nord, les exemples comparés de Djemila et de Sétif", in C.Arch. , XIV, 1964, pp. 21-22, plan p. 14. (worldcat)