DRAFT
House of Baklouti (Maison de Baklouti)
Dates
Unspecified
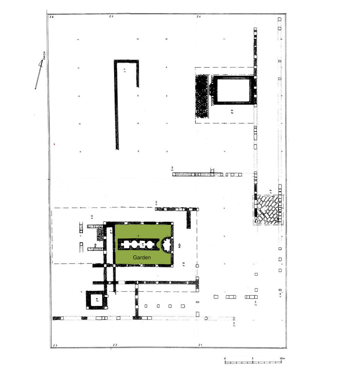
Garden Description
The peristyle garden enclosed by a portico on four sides had a long basin, which was concave at one end, and had semicircular and rectangular niches. It occupied the central axis of the garden. The bottom was paved with mosaic. The semicircular pool extending into the garden on the E side was also decorated with niches.
Plans

Credit: (Baklouti, H., 1997, fig. 3).
Bibliography
- Baklouti, H., "Une fouille à Uthina, rapport préliminaire", in Série REPPAL, Revue des Etudes Phéniciennes-Puniques et des Antiquités Libyques ques et des Antiquités Libyques, 1997, 10, p. 21, fig. 3, pp. 17-34. (worldcat)
- Ben Hassen H. H., "Le parc archéologique d'Oudhna, antique Uthina (Tunisie)", in Bulletin de la Société Nationale des Antiquaires de France, 2001, 2006. pp. 225-238.(worldcat)
- Bullo, S., Ghedini, F., Amplissimae atque ornatissimae domus: l'edilizia residenziale nelle città della Tunisia romana, Rome: Edizioni Quasar, 2003, p.333-334. (worldcat)