Bath Complex
Province
Province Description
In 236 BC, to offset Carthage's loss of Sicily and Sardinia in the First Punic War, Hamilcar Barca led an expedition into Hispania to establish a colony there. Through force of arms and diplomacy, he spread Carthaginian influence as far north as Barcellona, which bears his name. In 230 BC, Hasdrubal, his son-in-law, established Qart Hadast that became Carthago Nova in Roman times and Cartagena today. After the death of Hasdrubal, Hannibal, Hamilcar's oldest son, took command, attacked Saguntum, and in 218 set out for Italy leaving his younger brother, Hasdrubal, in command in Spain. Through the Alps, he descended into Italy and threatened Rome for fourteen years. Roman armies under the brothers Gnaeus and Publius Cornelius Scipio kept Hasdrubal in check and prevented his reinforcing Hannibal. They were both killed by the Carthaginians in 212. Two years later, another Publius Cornelius Scipio, the 25-year-old son of the late general of the same name, was sent to Spain. The next year, he captured New Carthage and, in 206 at the battle of Ilipa (about 15 km north of Savilla) destroyed most of the Carthaginians' numerically superior army and ended their hold on Spain. Scipio settled his wounded veterans nearby at a place he called Italica to remind them of their origins. Today, it is one of the best Roman archaeological sites in Italy. After a quick trip back to Rome, where he was elected consul, he returned to Spain and went on to attack Carthage itself. Hannibal was recalled to Africa, but Scipio annihilated his army in 202. Rome thus came into possession of the Mediterranean coast of Iberia.
If Rome was drawn into Hispania to keep the Carthaginians there from supporting Hannibal in Italy, it missed the opportunity offered by Hannibal's defeat to get out of Spain honorably. Instead, in 197 BC it created two new Roman provinces, Hispania Citerior whose capital was Carthago Nova and Hispania Ulterior with Corduba as its capital. Soon after, Rome launched a long war to subjugate the Lusitani, Celtiberians on the west coast. During Sulla's dictatorship, the Lusitani were again in revolt, this time under the able leadership of the Roman general Quintus Sertorius, who sought to create an independent, Roman-like state in Hispania. He established a senate and schools for the sons of the local nobility.
Augustus's conquest of Hispania produced a new territorial division that replaced the earlier two-province organization of the region. Augustus divided the whole of the peninsula into three provinces: Hispania Citerior or Tarraconensis, with its capital Tarraco (Tarragona); Hispania Ulterior Baetica, with its capital Corduba (Córdoba); and Hispania Ulterior Lusitania, or Emerita Augusta, with its capital Mérida. The provinces, in turn, were subdivided in administrative legal units, or conventus. The western lands stayed part of the newly demarcated Lusitania, areas into which Romanization had hardly penetrated, in contrast to the other areas of the peninsula where the classical tradition had been incorporated quite early. This division lasted until late antiquity, when Tarraconensis was subdivided into three provinces: Tarraconensis, whose capital continued to be Tarraco (Tarragona), Carthaginiensis, with Carthago Nova (Catagena) as its capital, and Gallaecia, whose capital was Bracara Augusta (Braga, in northern Portugal).
The Mediterranean trio of wine, oil and cereals are the crops most frequently mentioned by all the classical authors when referring to the Iberian Peninsula. These were not the only plants cultivated here. Trogus Pompey, in his Universal History (44. 1-2), praises, as well as those products, the fertility of the soil itself, the benevolence of its climate, the opportune and abundant rains which enable all types of fruits to be gathered, thus supplying every need. He describes the linen and esparto grass as of the highest quality. Strabo recorded the tradition of irrigation as a common practice in pre-Roman agriculture (Strabo 3.2.5). This was continued by the Romans, as shown by the number of aqueducts, dams and small reservoirs still to be found on Spanish soil. Pliny, during his stay as procurator in Spain in the first century, gives more specific descriptions of the flora throughout his Natural History (Book XVI). Martial (Epigrams II) refers to myrtle, box and laurel, as common elements to be found in the garden of country houses in Spain.
It is not strange, therefore, that gardening, the work of the topiarius, was usual in Iberian houses, as this study shows. It was not, however, totally new to Spanish territory. Although there are no literary references to gardening in the Pre-Roman era, it must have been part of Iberian culture, as is proved in an unusual way in the northwest of the peninsula in the area under the influence of Greek culture from the city of Emporion (Ampurias or Empuriae). A Hellenic establishment there, Rhode (Rosas), in the third century BC minted drachmas with a rose as the emblem. There were sacred woods connected with the cities. Close to Augustas Emeritas was Lucus Feroniae. Dedicated to Augustus was Lucus Augusti, which gave rise to the present-day Lugo, in Galicia, and another Lucus existed in the environs of Gijón, the Lugo de Llanera (Blázquez, p. 24).
There has been little research on the gardens in the Roman settlements in Spain and Portugal. In drawing up the list of sites with gardens for this catalog, we have accepted that a garden existed when it was so labeled by the excavators. There are, however, many other probable gardens which we have included. Gorges found just under forty villas where enough remained to draw a plan. In them, certain features help to identify a garden. A peristyle alerts us to suspect a garden, but peristyle courtyards were sometimes paved with stones or bricks over a layer of lime. They were clearly not gardens. But if the courtyard had soil in it, it was in all probability a garden. Fountains, fountain statues, and pools are typical of a garden since water is indispensable for a garden. Most peristyles in Roman villas in Spain had ornamental irrigation channels, semicircular pools, wells or pools that gave the impression of still water that, nevertheless, endowed the garden with a cool humidity that favored the cultivation of plants. In Spain, peristyles with drainage are found in the first and second centuries AD and are also common in the late Empire. Certain types of statuary intimately connected with vegetation and nature are found in gardens, such as divinities related to Bacchus and his circle. At Pompeii, Diana, a garden goddess, sometimes paired with Apollo, is also found. Herms were placed on pilasters, as the examples in situ from Pompeii show. Characteristic of Roman villas was the way in which they opened out to the countryside onto a grand vista of gardens and parks filled with fountains.
The roughly triangular province of Tarraconensis, by far the largest of the three provinces of the Iberian Peninsula, stretched across the north side of modern Spain and down the east coast as far as Almeria. On the Atlantic coast, it reached as far south as present Oporto.
Bibliography
J. M. Blázquez, Los jardines en la Hispania Romana, in Historia de los Parques y Jardines en España. Madrid, 2001, pp. 5-35; M. C. Fernández Castro, Las villas romanas en Hispania. Madrid, 1986 (worldcat)
P. Fernández Urdiel, Fases de la conquista romana e inicios del asentamiento, in Hispania. El legado de Roma. En el año de Trajano. Museo Nacional de Arte Romano de Mérida, Ministerio de Educación y Ciencia, Caja Duero. Zaragoza, 1999, p. 53-67 (worldcat)
J.G. Gorges, Les villes hispano-romaines. Inventaire et problematique archaeologiques. Centre Pierre Paris, París, 1979 (worldcat)
M.ª L. Loza Azuaga, La escultura de fuentes en Hispania: ejemplos de la Bética, in Actas de la I Reunión sobre escultura romana en Hispania. Mérida, 1993, pp. 97-105. (worldcat)
Location
Location Description
Segóbriga, a deserted Roman city with theater, amphitheater, forum, walls, aqueduct and baths, lies about 100 kilometers southeast of Madrid. Livy speaks of it as a noble and powerful town subdued by the Romans in 179 BC. In the 1st century BC it grew as a center for trade, cereal and cattle production, and for mining gypsum, lapis specularis, then used for windows. It became a municipium in th time of Augustus. The city reached its height near the end of the 1st century AD, then began a slow decline, but even in Visigothic time it sent bishops to councils. Within the city, there are remarkably few remains of residences. Presumably the population that filled the theater and amphitheater lived in country villas or closer to the mines. The site has been developed as an archaeological park; the monuments are in remarkably good condition and are eminently visitable.
Garden
Bath Complex
Keywords
Garden Description
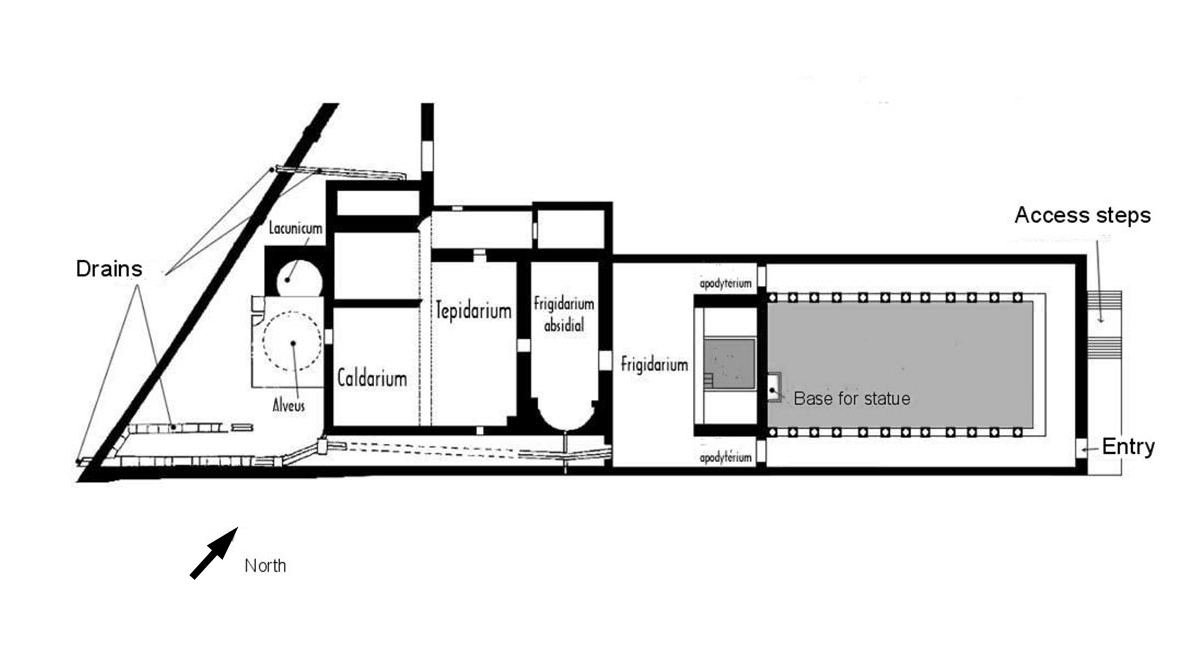
N 39 53' 10" W 2° 48' 45" Monumental baths about 88 meters long and 40 meters wide were built in Flavian times in the north end of the city. Immediately after the entry came a large peristyle courtyard. Perhaps it was a garden but could also have been primarily a palestra. At the end away from the entrance and towards the baths proper was found the base of a statue.
Plans

Images

Dates
Flavian times(A.D 69-96)
Bibliography
- J. M. Blázquez, "Los jardines en la Hispania Romana", in Historia de los Parques y Jardines en España. Edita Grupo FCC, Madrid, 2001, p. 26. (worldcat)