Rural Villa in Latimer
Location
Garden
Rural Villa in Latimer
Keywords
- fences (site elements)AAT:300005044
- flower gardensAAT:300008135
- orchardsAAT:300008890
- vegetable gardensAAT:300008142
- villae rusticaeAAT:300005518
Garden Description
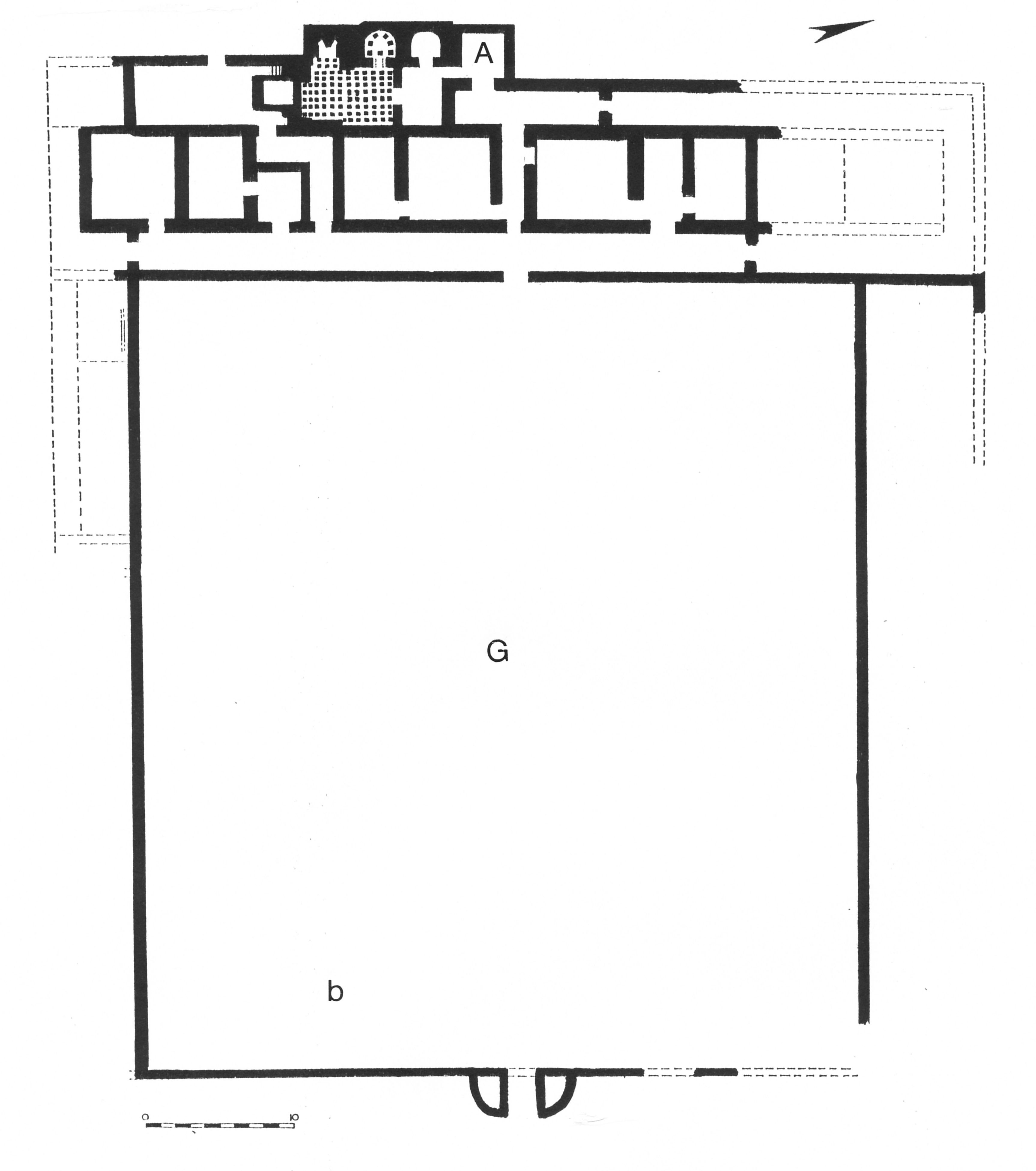
Excavations at this country house in Buckinghamshire have produced evidence for gardens adjacent to the main residence in its latest phase dating to the beginning of the 4th century (Fig. 1). The house at the west is of the winged corridor type, fronted by a large courtyard bisected by a paved central drive with a banked edge. Between the outer courtyard wall and the house were areas used for gardening (G in Fig. 1). Just inside the outer yard wall on the south side of the drive traces of at least six bedding trenches cut into the natural subsoil and running parallel to each other were followed for at least 5 meters (b in Fig. 1). These have been interpreted by the excavator as the remains of vegetable gardens (Fig. 2). He also attributed a number of stake holes in this area to small fences bounding the vegetable gardens, and suggested the possibility of an orchard on the northern side of the drive as well as a formal flower garden nearer to the house between the projecting wings, for which there is no concrete archaeological evidence. Finally a small pit just inside the courtyard gateway may represent a pit dug to take one of a pair of trees flanking the entrance.
Plans

Images

Dates
early 4th century CE - unspecified
Bibliography
- K. Branigan, Latimer. Belgic, Roman, Dark Age and Early Modern Farm, Bristol, 1971, pp. 85-86, 184, figs. 14, 20 (worldcat)
- M. Carroll, Earthly Paradises. Ancient Gardens in History and Archaeology. London: The British Museum Press, 2003, 19, fig. 29
- M. Carroll, They came, they saw, they gardened. The Garden: Journal of the Royal Horticultural Society 128.6, 2003, 461, fig. p. 463
- R.J. Zeepvat, "Roman Gardens in Britain," in: A.E. Brown, ed., Garden Archaeology. Council for British Archaeology Research Report 78, London, 1991, p. 56, fig. 5.3. (worldcat)