Vigna Barberini
Province
Location
Sublocation
Garden
Vigna Barberini Site Overview, Palatine
Keywords
- domusAAT:300005506
- palaces (official residences)AAT:300005734
- peristyles (Roman courtyards)AAT:300080971
- temples (buildings)AAT:300007595
Garden Description
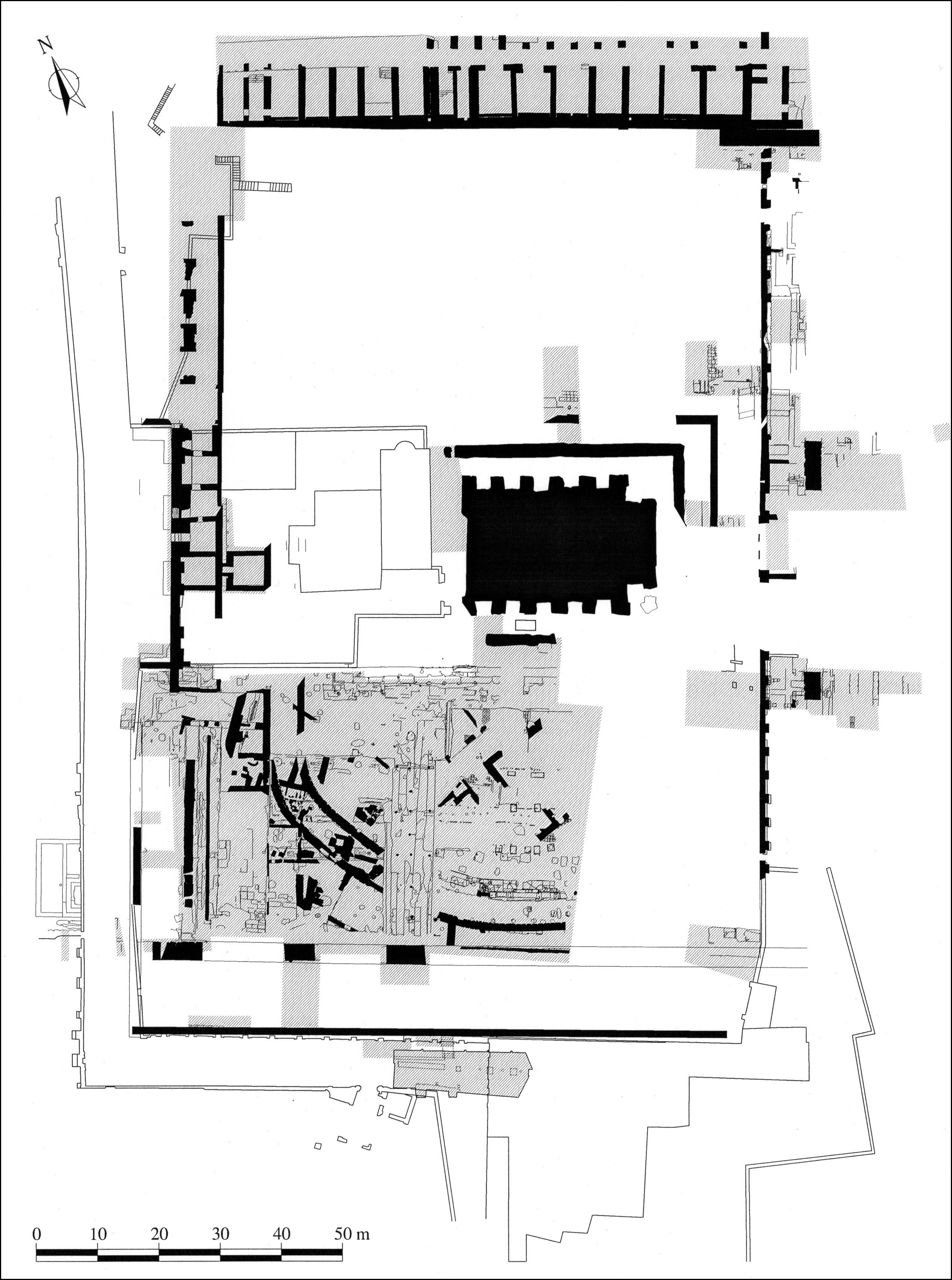
The artificial terrace that now carries the Barberini family name is located on the northeastern corner of the Palatine, beyond the visible remains of the Flavian Imperial palace (Fig. 1). Excavations carried out during the 1930s by A. Bartoli, and in the 1950s by G.F. Carettoni concentrated primarily on the central area of this site. These campaigns revealed the foundations of a large temple, which Bartoli identified, consistent with the earlier ideas of P. Bigot, as the remains of the late second-century Temple of Elagabalus.
Investigations by the Soprintendenza Archeologica in collaboration with École française de Rome since 1985 have revealed further episodes of the history of the area. Approximately one third of the site has been explored, although the most ancient levels have been reached only sporadically (Fig. 2).
The excavations that reached levels prior to the rise of the Empire revealed a peristyle of a large domus once decorated with plants and basins. Probably destroyed during the 60s of the first century CE, this luxurious dwelling was then buried under thick layers of soil used to create an artificial terrace that was a grand garden of the Palace of Domitian. About a century later, during the last years of the second century, this section of the imperial palace was demolished to make room for a monumental complex centered around a temple, the Elagabalium, dedicated by the emperor Heliogabalus to the eastern god, Elagabalus, which was later rededicated by Severus Alexander to Jupiter Ultor.
PHASES OF THE VIGNA BARBERINI SITE:
Garden of the Peristyle of the Julio-Claudian Domus
Garden of the Flavian Imperial Palace
Garden of the Temple of Elagabalus
Figures


Dates
1st century BCE- 2nd century CE
Excavation Dates
1930s: A. Bartoli
1950s: G.F. Carretoni
1985-: Soprintendenza Archeologica in collaboration with École française de Rome
Bibliography
- P. Bigot, "Le temple de Jupiter Ultor et la Vigna Barberini," Bullettino della Commissione archeologica Comunale di Roma, 1911, pp. 80-85. (worldcat)
- F. Villedieu, J.-P Morel, P. Pergola, H. Broise, Y. Thébert, P. Gros, E. Hubert, et alii, "Rome: le Palatin (Vigna Barberini)," Mélanges de l'École Française de Rome 98 (1986) pp. 387-396; 99 (1987) pp. 481-498; 100 (1988) pp. 505-525; 101 (1989) pp. 489-498; 102 (1990) pp. 443-471; 103 (1991) pp. 313-338; 104 (1992) pp. 465-493; 105 (1993) pp. 419-439; 106 (1994) pp. 431-450; 107 (1995) pp. 459-493; 108 (1996) pp. 423-451; 109 (1997) pp. 417-440; 110 (1998) pp. 473-492; 111 (1999) pp. 449-481; 112 (2000) pp. 413-432. (worldcat)
- M. Royo, F. Chausson, E. Hubert, et alii, La Vigna Barberini I. Histoire d'un site. Étude des sources et de la topographie, Rome, 1997. (worldcat)
- M.A. Tomei, "La ex Vigna Barberini e le aree limitrofe: documentazione dall'archivio della Soprintendenza archeologica" La Vigna Barberini I, op. cit, pp. 191-210. (worldcat)
- C. Virlouvet, F. Villedieu, et alii, "Fouilles de l'École française de Rome sur le site de la Vigna Barberini (Palatin)," Bollettino di Archeologia 23-24 (1993), pp. 131-164. (worldcat)
- F. Villedieu, "La Vigna Barberini (Palatino): nuove acquisizioni," Archeologia Laziale XII, Quaderni di Archeologia Etrusco-italica, 1995, pp. 33-39. (worldcat)
- F. Villedieu, "Constructions impériales mises au jour à l'angle N-E du Palatin. Résultats des fouilles de l'École française de Rome sur le site de la Vigna Barberini," Comptes Rendus de l'Académie des Inscriptions & Belles-Lettres, 1995, pp. 719-736.(worldcat)
- J.-P. Morel, "Stratigraphie et histoire sur le Palatin : la zone centrale de la Vigna Barberini," Comptes Rendus de l'Académie des Inscriptions & Belles-Lettres, 1996, pp. 173-205. (worldcat)
- F. Villedieu, P. Veltri, "Les soutènements nord-ouest et nord de la terrasse de la Vigna Barberini (Rome, Palatin): constructions et remaniements de l'époque flavienne à l'époque sévérienne," Mélanges de l'École Française de Rome, 111 (1999), pp. 749-778. (worldcat)
- F. Villedieu , et alii, Il giardino dei Cesari. Exhibition catalogue (Rome, Museo Nazionale Romano, Terme di Diocleziano, Oct. 2001- Jan. 2002), Rome, 2001. (worldcat)